St. Bonifatius 

Liturgische Neugestaltung und Sanierung 

Baujahr: 2014 bis 2019 

Nutzfläche:  

LPH: 1-9 

 

Die Kirche in Büdingen wurde vom Bürogründer Carl Müller im Jahr 1964/65 errichtet.

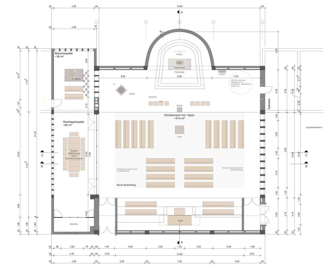
Nach einem durch Brandstiftung verursachten Brand wurde die Gelegenheit genutzt, das neue liturgische Konzept –Zentralgottesdienst – im Innenraum umzusetzen und die Kirche innen und außen komplett zu sanieren. Dabei wurden die grundlegenden Gestaltungselemente des Architekten Müller unterstrichen bzw. neu interpretiert – die abgehängte Decke aus Holzlamellen, die Lichtwirkung der farblich gestalteten Fenster sowie die Lichtinszenierung des Hochaltars.
Der Grundriss wurde so organisiert, dass der Altar im Zentrum der Gemeinde steht.