Messestadt Riem, Muenchen, Bild 1
Messestadt Riem, Muenchen, Bild 2
Messestadt Riem, Muenchen, Bild 3
Messestadt Riem, Muenchen, Bild 4

Messestadt Riem, Munich 

Ankauf 

Baujahr: 1998 

Nutzfläche:  

LPH: 1+2 

Munich- Riem, Germany 

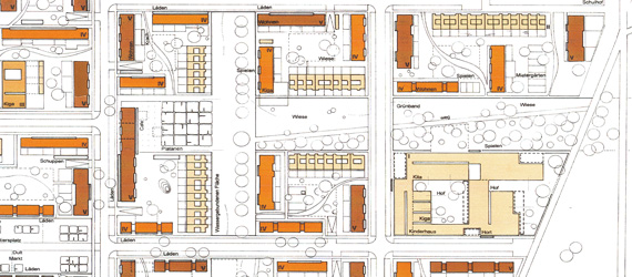
Städtebaulicher Wettbewerb zur Entwicklung der östlichen Messestadt am ehemaligen Flughafen in München - Riem. Entwurf eines kompletten Stadtteils mit Wohnen, Gewerbe und öffentlichen Nutzungen.

Mit Ellen Weidner, Darmstadt und Regina Schineis, Augsburg.